Zweiflügelige Terrassentür
Balkontüren online kaufen
Direkt vom Hersteller
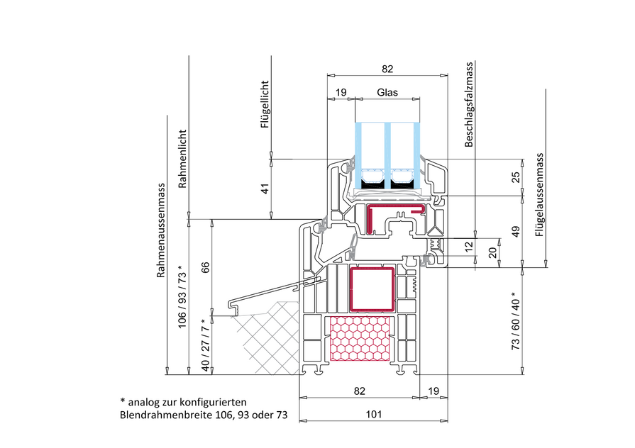
Das Profil
Mit dem hochmodernen Kunststoff-Profilsystem unserer Fenster optimieren Sie die Energiebilanz eines jeden Gebäudes. Die einzigartige Kombination aus innovativer Mehrkammer-Dämmtechnik in 82 mm Bautiefe und hocheffektivem Mitteldichtungssystem sorgt für eine effiziente Heizkostenersparnis und ein angenehmes Raumklima, zu jeder Jahreszeit. Die Fenster kommen im Standard mit Wetterschenkel (farblos eloxiert).
Der Beschlag
Unsere einflügeligen Kunststofffenster sind mit einem hochwertigen Dreh-Kipp-Beschlag ausgestattet. Das Beschlagsystem erfüllt höchste Anforderungen an Sicherheit, Bedienkomfort, Langlebigkeit und Design. Sämtliche Bauteile aus dem modular aufgebauten Baukastensystem sind perfekt aufeinander abgestimmt und können mit unterschiedlichen Sicherheitspaketen kombiniert werden.
Das Glas
Durch die Kombination von optimaler Edelgasfüllung, unsichtbarer Wärmeschutz-beschichtung und Dreifachverglasung ergibt sich im Vergleich zu älteren Fenstern ein Einsparpotential von bis zu 75 Prozent. Dank der Dreifach-Isolierverglasung unserer einflügeligen Kunststofffenster erreichen die Gläser eine Wärmedämmung von bis zu 0,6 W/m²K. Konfigurieren Sie verschiedene Ornamentgläser und Verbundsicherheitsglas.
Details
Technische Zeichnungen zur Terrassentür
Zweiflügelige Balkontür
Das kaufen unsere Kunden am häufigsten
|
Balkontür zweiflügelig 1200 x 1900 mm | weiss | ab CHF 860.20 | Bestellen |
|
Balkontür zweiflügelig 1500 x 2200 mm | weiss | ab CHF 1'039.05 | Bestellen |
|
Balkontür zweiflügelig 1740 x 2030 mm | weiss | ab CHF 1'109.95 | Bestellen |
|
Balkontür zweiflügelig 1500 x 2100 mm | weiss | ab CHF 1'004.05 | Bestellen |
|
Balkontür zweiflügelig 1700 x 2100 mm | weiss | ab CHF 1'078.00 | Bestellen |
|
Balkontür zweiflügelig 1200 x 2400 mm | weiss | ab CHF 1'004.05 | Bestellen |
|
Balkontür zweiflügelig 1200 x 2280 mm | weiss | ab CHF 962.10 | Bestellen |
|
Balkontür zweiflügelig 1800 x 2050 mm | weiss | ab CHF 1'109.95 | Bestellen |
|
Balkontür zweiflügelig 1350 x 2200 mm | weiss | ab CHF 1'005.05 | Bestellen |
|
Balkontür zweiflügelig 1400 x 2030 mm | weiss | ab CHF 973.10 | Bestellen |